MARENGO, 28 LOGEMENTS LOCATIFS SOCIAUX,
SAINT-ETIENNE (42)
Spécificités :
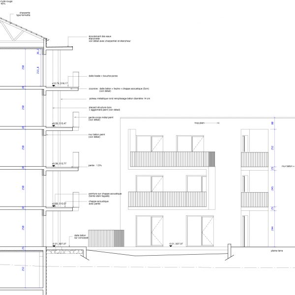
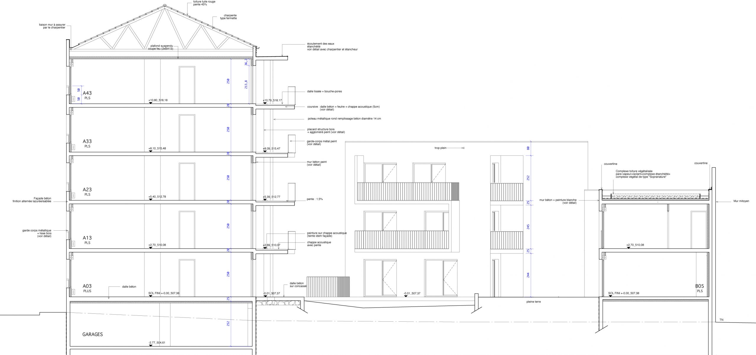
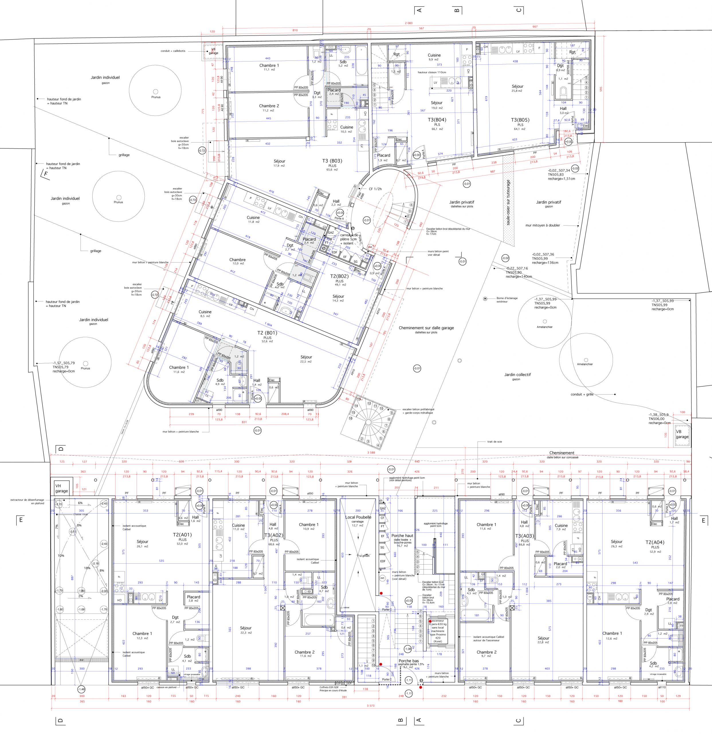
Une rue étroite du centre ville et un cœur d’îlot chaotique définissent le site du projet. Les 28 logements se répartissent en deux immeubles, le premier à l’alignement sur rue et le second adossé sur les mitoyennetés du fond de parcelle. La dualité qui en découle caractérise l’ambiance du projet. Les logements situés sur rue sont tous traversant et trouvent leur intimité dans le rapport au jardin. L’immeuble sur rue dessert deux logements de part et d’autre des parties communes par une large coursive à la géométrie en lignes brisées. L’immeuble sur rue reprend la simplicité des bâtiments stéphanois, composé avec des fenêtres aux allèges basses, une surface lisse sans modénature particulière à l‘exception d’une teinte à l’intérieur des embrasures, créant ainsi un rythme cinétique sur la rue.
Le béton reçoit une lasure brillante offrant ainsi à la rue les reflets du soleil d’Ouest.
En intérieur cour, la blancheur et les courbes du petit immeuble lové sur les mitoyennetés renforce le statut et l’ambiance domestique.
Un parking enterré permet de gérer la totalité du stationnement. Cependant 40% du tènement reste en terre végétale, proposant ainsi des jardins.
L’immeuble sur cour, est quant à lui plus petit. Il vient se «lover» et s’appuyer sur les contour des mitoyens. Les courbes qui le composent, sa blancheur et sa toiture végétalisée lui confère un statut particulier, intime et domestique.
Niveau énergétique : THPE (Très Haute Performance Énergétique)
Maitre d’ouvrage : ALLIADE HABITAT
Maîtrise d’œuvre : Yan Olivares, E. et S. David (ex-YES architectes), mandataire
QUADRI + GROUPE | BET TCE
Surface de plancher : 2000 m2
Montant des travaux : 2 300 000 € HT
Avancement : Livraison 2013
Photographies © François Maisonnasse



























