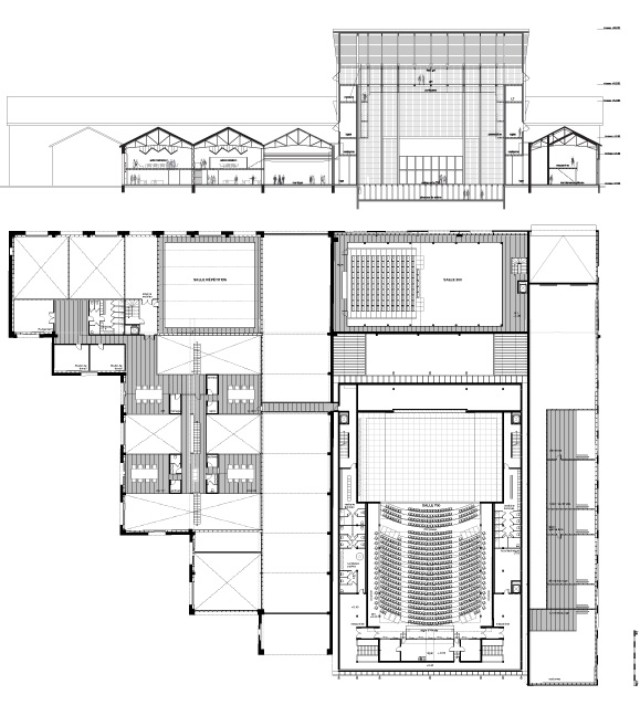
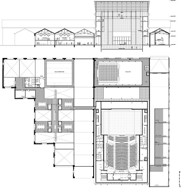
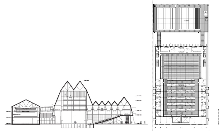
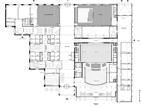
COMÉDIE | CENTRE NATIONAL D’ART DRAMATIQUE
SAINT ÉTIENNE (42)

Maitre d’ouvrage : Ville de Saint-Etienne (42)

Maîtrise d’œuvre : CONSTRUIRE – P. Bouchain & Julienne, mandataire
Architectes associés Yan Olivares, E. & S. David (ex-YES architectes)
Cotraitants QUADRI + GROUPE BET TCE | PROCOBAT | ASTEO | Y.M Ligot

Surface de plancher : 5350 m2 

Montant des travaux : 18 356 000 € HT

Avancement : Concours perdu